은평 구립 편백어린이집 건립설계 (간이)공모

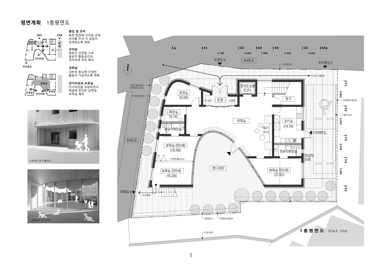
좁은 도로와 주거 건물들이 밀집된 주변 환경속에서도 어린이집의 아이들과 선생님들이 빛과 자연을 충분히 느낄 수 있기를 바랬다. 남측의 잔디마당을 중심에 두고 주변으로 각 실을 계획하여 시각적, 물리적 개방감을 주어 밝은 공간을 만들어주고자 한다.

은평 구립 편백어린이집 건립설계 (간이)공모 은평 구립 편백어린이집 건립설계 (간이)공모 은평 구립 편백어린이집 건립설계 (간이)공모 은평 구립 편백어린이집 건립설계 (간이)공모 은평 구립 편백어린이집 건립설계 (간이)공모 은평 구립 편백어린이집 건립설계 (간이)공모 은평 구립 편백어린이집 건립설계 (간이)공모